Ferienwohnung als Kapitalanlage
Waldstraße 64 in 18375 Prerow
In Prerow entsteht der Neubau von 9 Wohneinheiten, die zu 100 % zulässig als Ferienwohnungen vermietet werden können. Die Eigennutzung ist selbstverständlich ebenfalls möglich. Durch die Erhaltungssatzung der Gemeinde Prerow handelt es sich bei diesem Objekt um eines der letzten voll vermietbaren Ferienprojekte. Im Mai 2022 wurde mit den Neubau begonnen. Die Fertigstellung inklusive der Außenanlagen soll Ende 2023 erfolgen.

(Foto von einem Vergleichsobjekt in Zingst)
Das massiv gebaute Mehrfamilienhaus bietet 9 Wohneinheiten mit 2 oder 3 Zimmern auf 3 Etagen. Der Zugang erfolgt teils über einen eigenen Eingang oder über den gemeinsamen Treppenflur. Den Wohneinheiten im Erdgeschoss werden entsprechende Grundstücke als Gartenland zugeteilt. Ebenfalls gehört jeweils eine gepflasterte Terrasse mit südöstlicher Ausrichtung zur Ausstattung dazu. Die Wohnungen im Dach und Spitzbodengeschoss erhalten jeweils einen verglasten Balkon mit Edelstahlhandlauf.
Alle Wohnungen erhalten Abstellhäuser mit einer Größe von 5 m², mit Innenbeleuchtung und einer Doppelsteckdose sowie jeweils 2 PKW Stellplätze. Diese befinden sich auf dem Grundstück.
(Foto von einem Vergleichsobjekt in Zingst)
Für die Wohnungen kann individuell durch den Eigentümer eine Einbauküche eingebaut werden. In allen Bädern werden hochwertige Sanitär und Einrichtungsgegenstände der Firma KERAMAG Modell Renova sowie der Firma Hansgrohe installiert. Zwei Wohneinheiten werden mit Echtholztreppen der Firma Treppenbau Plath, ansässig in der Hansestadt Wismar, ausgestattet. Alle Wohnungen werden mit Fußbodenheizung ausgestattet. Ausgenommen davon sind die Abstellräume und die allgemeinen Treppenflure. Die Bäder erhalten zusätzlich einen separaten Handtuchheizkörper.
Das Mehrfamilienhaus wird mit doppelt verglasten Holzfenstern und massivenHolzeingangstüren ausgestattet. In jeden Zimmer wird ein Fenster mit einem herausnehmbaren Insektenschutzgitter versehen. Zusätzlich wird in jedem Wohnzimmer in eine Terrassentür ein Insektenschutzgitter als nach außen aufklappbares Rahmenelement installiert. Die Heizung ist als zentrale Luft Wärme Pumpe vorgesehen. Die Anlage steht im Technikraum im Erdgeschoss.
Grundriss Erdgeschoss
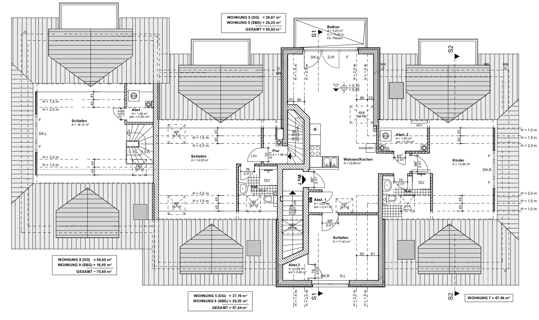
Grundriss Dachgeschoss
Grundriss Spitzboden
Makrolage
Mikrolage
Lagebeschreibung
Das Ostseebad Prerow ist eine Gemeinde des Amtes Darß Fischland mit Sitz in Born a. Darß in Mecklenburg Vorpommern. Der Ort befindet sich zum größeren Teil auf dem Darß , ein kleinerer Teil liegt auf der Halbinsel Zingst , beides Teile der Halbinsel Fischland Darß Zingst. Prerow wird umgeben vom Nationalpark Vorpommersche Boddenlandschaft.
Die Hansestädte Rostock (ca. 63 km) und Stralsund (ca. 54 km) erreichen Sie über die B 105. Die Orte Barth und Ribnitz Damgarten sind jeweils ca. 21 km und ca. 37 km von Prerow entfernt und liegen an der Bahnstrecke Stralsund Rostock. Fahrgastschiffe verkehren von Prerow aus in die Fischland Gemeinden nach Bodstedt und Barth.
Einrichtungen für den alltäglichen Bedarf wie Ärzte, Post, Supermärkte, Kindergarten sind im Ort vorhanden. Weiterführende Schulen befinden sich im Ort und in Zingst (ca. 9 km). Prerow ist ein Ferienidyll für Segler, Surfer, Camper, Radfahrer und Wanderer.
Projektvorhaben in Zahlen
- 9 Wohneinheiten
- Angebotene Wohnungsgrößen von ca. 50 m² bis ca. 75 m²
- WE 1 Erdgeschoss inkl. Garten 3 Raum ca. 60,31 m²
- WE 2 Erdgeschoss inkl. Garten 2 Raum ca. 50,22 m²
- WE 3 Erdgeschoss inkl. Garten 3 Raum ca. 68,69 m²
- WE 4 Obergeschoss inkl. Balkon 3 Raum ca. 60,63 m²
- WE 5 Obergeschoss + Spitzboden inkl. Balkon 2 Raum Maisonette ca. 56,92 m²
- WE 6 Obergeschoss inkl. Balkon 3 Raum ca. 69,31 m²
- WE 7 Spitzboden inkl. Balkon 3 Raum ca. 67,84 m²
- WE 8 Erdgeschoss inkl. Garten 2 Raum ca. 61,43 m²
- WE 9 Obergeschoss + Spitzboden inkl. Balkon 3 Raum Maisonette ca. 75,60 m²
- Kaufpreise Netto
- WE 1 60,31 m² 569.000,00 € zzgl. 2 Stellplätze Gesamt 594.000,00 €
- WE 2 50,22 m² 473.000,00 € zzgl. 2 Stellplätze Gesamt 498.000,00 €
- WE 3 68,69 m² verkauft
- WE 4 60,63 m² 573.000,00 € zzgl. 2 Stellplätze Gesamt 598.000,00 €
- WE 5 56,92 m² reserviert
- WE 6 69,31 m² 573.000,00 € zzgl. 2 Stellplätze Gesamt 598.000,00 €
- WE 7 67,84 m² 572.000,00 € zzgl. 2 Stellplätze Gesamt 597.000,00 €
- WE 8 61,43 m² 570.000,00 € zzgl. 2 Stellplätze Gesamt 595.000,00 €
- WE 9 75,60 m² 669.000,00 € zzgl. 2 Stellplätze Gesamt 694.000,00
- 2 Stellplätze jeweils 12.500,00 €
- Baubeginn Mai 2022
- Geplante Fertigstellung Ende 2023
Referenzen
Das im Jahr 2014 fertig gestellte Vergleichsobjekt (siehe Bilder oben) mit 7 Wohneinheiten in Zingst, Neue Reihe 28 repräsentiert das Bauvorhaben in Prerow. Die Struktur beider Immobilien ist gleich. Der Unterschied besteht lediglich in der Anzahl der Wohneinheiten bzw. sind 2 Wohnungen auf der linken Seite des Gebäudes dazu gekommen.
Kontakt /Ansprechpartner
Lifestyle Immobilien
Jean Dieckelmann
Kontakt
Katharina Frahm
+49(0) 172 757 666 8
Wismarsche Str. 29
18057 Rostock
Telefon +49(0) 381 25 22 871
Telefax +49(0) 381 25 22 877
Internet: www.Lifestyle-Immobilien24.de
Diese E-Mail-Adresse ist vor Spambots geschützt! Zur Anzeige muss JavaScript eingeschaltet sein!











